Privilège® Disabled mobile home rental for 6 guests
Privilège® PMR Deluxe mobile home – 3 bedrooms / 6 guests
NEW FOR 2026 !
Les Jardins de La Pascalinette ® is one of the first campsites in France to offer this air-conditioned, accessible, XXL mobile home for people with handicaps at our 4-star campsite. Enjoy a different kind of camping holiday on the Côte d’Azur! A holder of the Tourism & Handicap label for many years, we are committed to ensuring everyone enjoys an exceptional holiday.
“Welcome, comfort, service and accessibility” could be our motto!

A 100% accessible campsite (4 types of handicap)
From our mobile home amenities to the water park’s main pool and the campsite restaurant and mini market, we make every effort to offer you a faultless welcome and ensure you enjoy a delightful and memorable holiday!
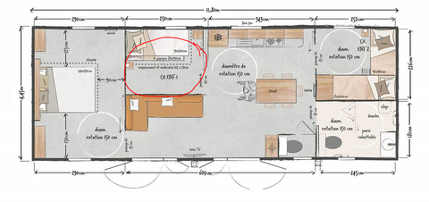
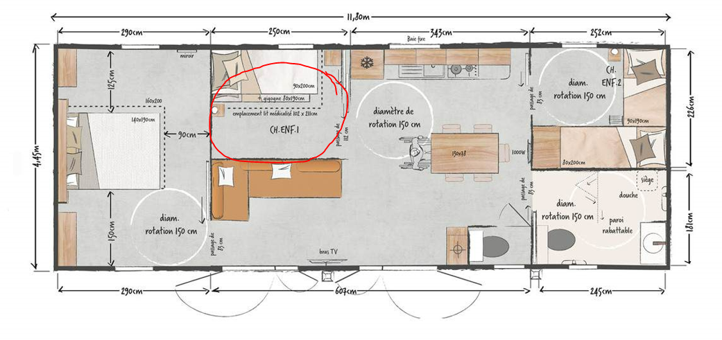
- The Privilège ® PRM XXL mobile home measures a whopping 50 m²!
- Even the bathroom is XXL!
NB: Children’s bedroom nr 1 can be fitted with a medical bed
You’ll find everything you need there for a comfortable and restful stay.
Ammenities
INTERIOR
- Adapted room access: minimum 83 cm (sliding doors).
- Turning radius: Ø 150 cm.
3 BEDROOMS
- 1 master room (13 m²) with raised double bed* (140×190),
- 1 room with two single beds:
- 1 single bed (90×190)
- 1 fold-out bed (80×190 – (max. 80kg),
- 1 room with bunk beds (bottom: 90×190 with raised feet / top 80×200 with ladder).
LIVING ROOM
- 1 flat screen TV with arms,
- 1 corner sofa with feet,
- 1 table (130×78) 1 corner sofa with feet.
KITCHEN
- adapted layout and worktop,
- sink (mixer tap with extended arm),
- fridge-freezer,
- gas hob and built-in extractor,
- crockery and utensils,
- electric coffee maker and microwave oven,
- dishwasher
- vacuum cleaner.
XXL BATHROOM
- walk-in shower,
- self-supporting washbasin and mixer tap with extended arm,
- Wall-mounted toilet at adapted height,
- 4 handrails (shower/toilet),
- Additional toilet.
EXTERIOR
- 1 large, built-in terrace with covered area,
- 1 wheelchair access ramp,
- 4 sun loungers,
- garden table and chairs.
- All electrical equipment and doorknobs in contrasting colours,
- cupboards,
- cotton sheets provided**.
Enjoy a fabulous holiday in a Privilège® PMR XXL mobile home,
at our green and accessible 4-star campsite. Savour the joys of space and tranquillity, topped with a water park*** and exceptional vegetation… Luxury in all simplicity!
Our amenities adapted for guests with challenges are the guarantee of a uniquely pleasurable holiday in the South of France. In short, the stuff dreams are made of!
Mobile home type: 1175 3CH O’Hara
Mobile home surface area: 50 m²
Year: 2026
Very large plot averaging 160 sq.m
Our campsite offers five PRM mobile homes, accessible to guests in wheelchairs.
*Foam mattress HR35 kg/m³, OEKO TEX (Dunlopillo)
** Sheet washing and changing during your stay is at your expense.
*** Please not: the campsite’s water slides are not PRM-accessible.
(Photos, texts and videos are for information purposes only.)

