'Privilège' disabled mobile-home - 2 rooms / 4-5 guests.
Accessible, air-conditioned mobile home for campers with reduced mobility
Enjoy a fabulous holiday in the Var area, French Riviera-Côte d’Azur, thanks to our extensive PRM amenities. Our campsite is a holder of the Tourism & Handicap label, because we believe everyone is entitled to an exceptional holiday. Our team is committed to ensuring your stay is both agreeable and comfortable.
At last, a 100% accessible campsite!
From accommodation to amenities and our main pool, we are constantly making efforts to offer our reduced-mobility guests a wonderful welcome and ensure you enjoy an unforgettable stay at our campsite!
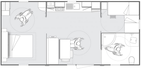
Our Privilège ® PRM mobile homes feature numerous amenities.
Indoors:
- one spacious bedroom with double bed (1.40 x 1.90 m),
- one bedroom with bunk beds (0.80 x 190 m) (maximum 80kg in top bunk bed),
- sofa bed in living area,
- air-conditioning,
- flat screen TV,
- dining table and sofa,
- living room with adapted kitchenette (worktop, sink, fridge-freezer, gas cooker, extractor fan).
Plus:
- crockery and kitchen utensils,
- dishwasher,
- vacuum cleaner,
- cupboards,
- adapted bathroom with walk-in shower, washbasin and toilet,
- cotton sheets provided*.
Enjoy a sunny holiday in the Var area! Outside our accessible mobile homes you’ll find:
- a large, semi-covered terrace adjoining the mobile home,
- an access ramp for wheelchairs,
- sun loungers,
- 1 garden table with chairs.
The Privilège® PRM mobile home allows you to enjoy the campsite’s main pool to the full – unless of course you’d rather take a dip at the beach in Hyères or La Londe.
Enjoy a genuine holiday in the Var, French Riviera-Côte d’Azur at our accessiblecampsite with adapted amenities for guests with challenges. Our beautiful PRM mobile homes are set in magnificent natural scenery.
*please note that washing / clean sheets during your stay are at your expense.
Model : Irm Life / Sunshine Habitat pmr
Mobile home size : 30.5 sq.m² / 34 sq.m²
Vintage : 2019-2025-2026
Very large plot averaging 140 sq.m
The campsite offers several reduced-mobility mobile homes suitable for guests in wheelchairs.

(Photos, texts and videos are for information purposes only.)






















